RUSTICASA | Casa da Árvore | Arcos de Valdevez من تنفيذ Rusticasa هوميفاي
Rusticasa

Rusticasa

Rusticasa
Rusticasa
رقم غير صحيح. الرجاء التدقيق على المقدمة الدولية ورقم الهاتف
بالضغط على 'ارسال' أؤكد أنني اطلعت على سياسة الخصوصية ووافقت على معالجة المعلومات السابقة للحصول على طلبي.
privacy@homify.comتنبية: يمكنكم الرجوع عن هذه الموافقة في أي وقت عبر ارسال بريد الكتروني إلى
تم الارسال!
سيقوم هذا المتخصص بالرد عليك في أقرب فرصة ممكنة.!

RUSTICASA | Casa da Árvore | Arcos de Valdevez

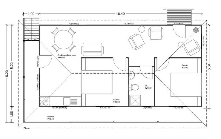
الابعاد الاجمالية
71 m² (مساحة)

Admin-Area